SÀN Giao Dịch TMĐT VIMEFULLLAND D2C KẾT HỢP VỚI MÔ HÌNH BIM 

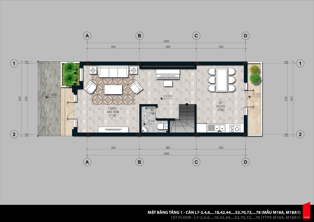
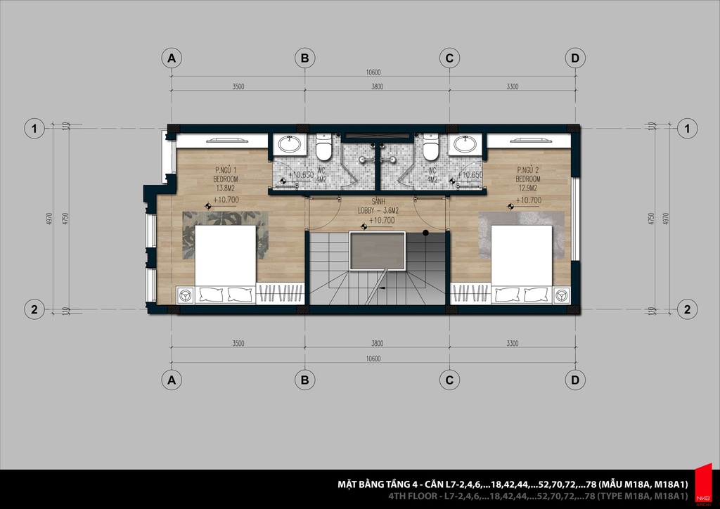
L7-78

75.0 m2
6 Phòng ngủ
Tây Nam

Giá bán (bao gồm VAT)

11.434.800.000 ₫ 11434800000.0 VND 11.434.800.000 ₫

11.434.800.000 ₫

Not Available For Sale

Liên hệ

Tên dự án:                                Dự án Athenafulland Vị trí dự án:                              Khu đô thị mới Đại Kim – Nguyễn Xiển – Hoàng Mai, Hà Nội  Chủ đầu tư:                              VimeFulland Nhà thầu xây dựng:                 COTECCONS Tổng diện tích dự án:              12ha Mật độ xây dựng:                     32.8% Quy mô thiết kế dự án:            Gồm 2 tòa nhà, cao 30 tầng, 3 tầng hầm & 1344 căn hộ Loại căn hộ:                              Từ 2 – 3 – 4 phòng ngủ Khởi công:                               Qúy IV/2017 Bàn giao:                                 Qúy IV/2019